• +351 916 736 826
  • geral@obradenivel.pt

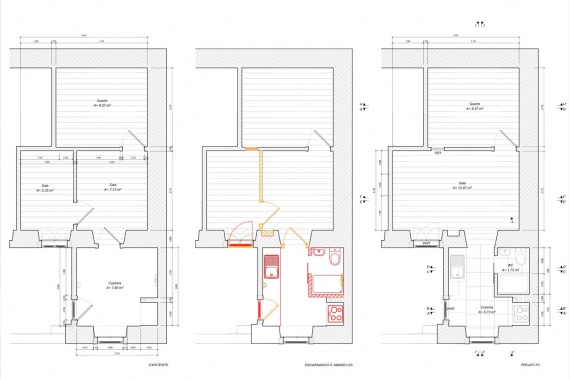
Apartamento na Cruz Quebrada – Oeiras

Projecto que visava recuperar um espaço habitacional sem grandes condições para o efeito, não tendo casa de banho, cozinha e pouca luminosidade natural.

Num espaço exíguo, com apenas 27m2, privilegiou-se a simplicidade, funcionalidade e a entrada de luz.

  • Telefone:
    +351 916 736 826

  • Rua República da Bolívia 20 A/B
    1500-547 Lisboa

© 2017 Obra de Nível. Todos os direitos reservados